Homes for Sale in Kansas City, MO 64155 | 10519 N Liberty Street

2547288

Property ID

2,987 SqFt

Size

4

Bedrooms

3

Bathrooms

Description

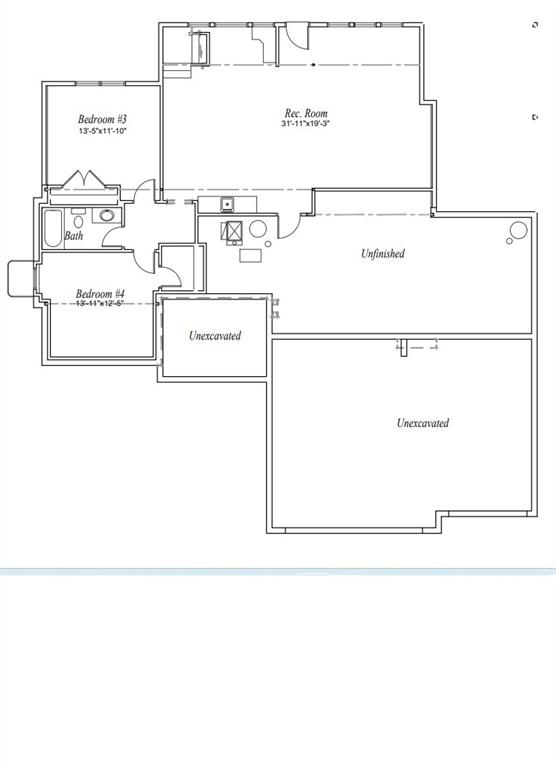
Move In Ready!!! Stunning New Construction “Tatum” Reverse 1,5 Story designed and built by Award-Winning New Mark Homes. Introducing a beautifully designed new floorplan by renowned builder New Mark Homes, located on a premium walkout lot that backs to trees. This thoughtfully crafted home offers main-level living with designer finishes, functional spaces, and scenic views—perfect for modern lifestyles. The open-concept great room welcomes you with hardwood floors, a gas fireplace, and custom built-in shelving. The gourmet kitchen is a showpiece, boasting a large island, quartz countertops, custom cabinetry with glass uppers, a walk-in pantry, and a gas range. The generous breakfast room offers ample space for family and guests alike. The main-level primary suite is a private retreat, featuring a spacious walk-in closet and a spa-like en-suite bath complete with a free-standing soaker tub, quartz countertops, a beautifully tiled shower, and a double vanity. A secondary bedroom on the main floor adds flexibility—perfect for guests or a home office. You’ll also find a laundry room and mudroom for added convenience. Step out onto the covered deck and take in the peaceful wooded view, or head downstairs to the finished walkout lower level, which includes two additional bedrooms, a full bath, wet bar, and a large family room filled with natural light thanks to generous windows. Located in a vibrant community featuring a swimming pool and walking trails, and served by award-winning North Kansas City Schools, this home is the perfect blend of luxury, comfort, and lifestyle. Taxes, rooms sizes & sqft approx. Staging furniture not included.

Address

Address: 10519 N Liberty Street, Kansas City, MO 64155
  • Country: United States
  • Province / State: MO
  • City / Town: Kansas City
  • Neighborhood: Cadence
  • Postal code / ZIP: 64155
Open on Google Maps
  • Property ID 2547288
  • Price $699,900
  • Property Type Single Family Residence
  • Property status Active
  • Bedrooms 4
  • Bathrooms 3
  • Size 2987 SqFt
  • Land area 0.23 SqFt
  • Label OPEN HOUSE: EXPIRED
  • Garages 3
  • School District North Kansas City
  • High School Staley High School
  • Middle School New Mark
  • Elementary School Nashua
  • Acres 0.23
  • Age 2 Years/Less
  • Amenities Pool, Trail(s)
  • Basement Basement BR, Finished, Walk-Out Access
  • Bathrooms 3 full, 0 half
  • Builder Unknown
  • HVAC Electric, Heat Pump, Heatpump/Gas
  • County Clay
  • Dining Breakfast Area
  • Equipment Cooktop, Dishwasher, Disposal, Exhaust Fan, Microwave, Stainless Steel Appliance(s)
  • Fireplace 1 - Great Room
  • Floor Plan Reverse 1.5 Story
  • Garage 3
  • HOA $600 / Annually
  • Floodplain No
  • Lot Description City Lot, Sprinkler-In Ground, Many Trees
  • HMLS Number 2547288
  • Laundry Room Main Level
  • Open House EXPIRED
  • Other Rooms Breakfast Room,Family Room,Great Room,Main Floor BR,Main Floor Primary Bedroom
  • Ownership Private
  • Property Status Active
  • Warranty Builder-1 yr
  • Water Public
  • Will Sell Cash, Conventional, FHA, VA Loan

Get Directions

Nearby Places

Contact

Michael

Your Real Estate Agent
Liberty, MO 64068
(816) 616-5640
michael@kcrealtors.com

Leave a Reply