Homes for Sale in Riverside, MO 64150 | 1904 NW 45th Terrace

2569942

Property ID

2,168 SqFt

Size

3

Bedrooms

2

Bathrooms

Description

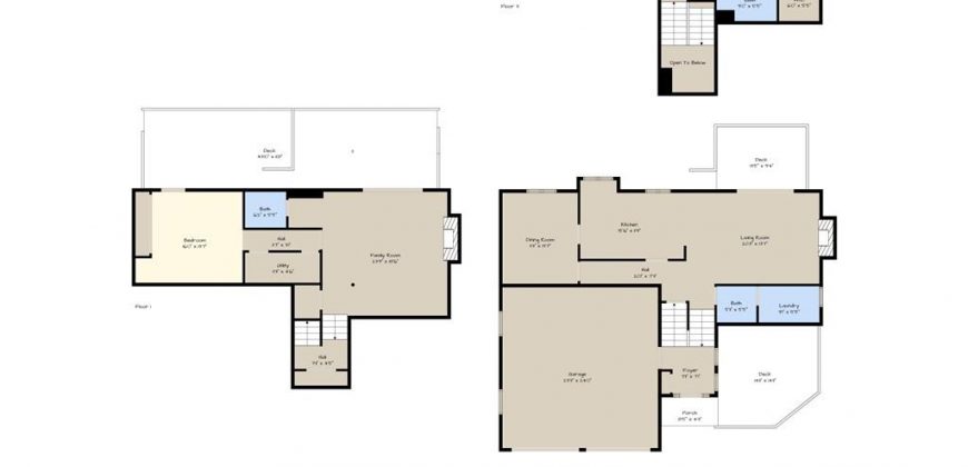
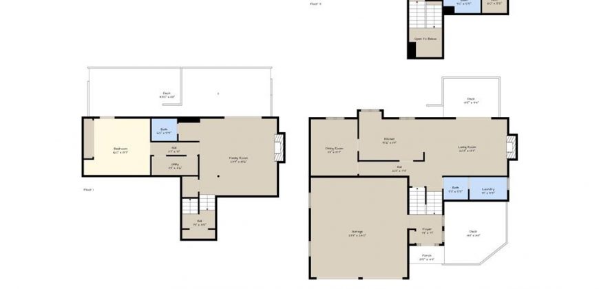
Say “hello” to this warm and cozy, one-owner home nestled on a peaceful, wooded cul-de-sac in the Indian Hills subdivision and Park Hill school district! Move right in – brand new carpet and fresh paint awaits! This spacious home features 3 bedrooms, 2 full bathrooms and 2 conveniently located half bathrooms, blending both cozy comfort and functionality for modern living.

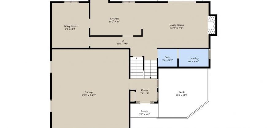
Step inside to find a unique and inviting layout – no “cookie cutters” here…this home is a perfect blend of both open concept and traditional styles. The main level features the kitchen with a bar perfect for entertaining, formal dining room, half bath, laundry room and a living room with a beautiful fireplace! Upstairs, you’ll find 3 spacious bedrooms, including the owners suite, which is complete with a full bathroom, balcony and walk-in closet! The walk-out basement boasts a rec room with another beautiful fireplace, a half bath and a bonus room that could be used as an office or non-conforming bedroom!

Enjoy peace of mind with recent updates including a new roof and updated HVAC system! The spacious 2-car garage offers plenty of room for parking and storage.

Outside, you can enjoy the private, treed lot from the multi-level deck! This home truly is tucked away in a quiet neighborhood, yet just minutes from Briarcliff, major highway access, restaurants and shops! The perfect blend of convenience and comfort in a prime location awaits – let’s make this home yours!

Address

Address: 1904 NW 45th Terrace, Riverside, MO 64150
  • Country: United States
  • Province / State: MO
  • City / Town: Riverside
  • Neighborhood: Indian Hills
  • Postal code / ZIP: 64150
Open on Google Maps
  • Property ID 2569942
  • Price $370,000
  • Property Type Single Family Residence
  • Property status Active
  • Bedrooms 3
  • Bathrooms 2
  • Year Built 1978
  • Size 2168 SqFt
  • Land area 0.29 SqFt
  • Garages 2
  • School District Park Hill
  • Acres 0.29
  • Age 41-50 Years
  • Basement Finished, Full, Walk-Out Access
  • Bathrooms 2 full, 2 half
  • Builder Unknown
  • HVAC Electric, Natural Gas
  • County Platte
  • Dining Formal
  • Equipment Electric Range
  • Fireplace 1 - Living Room, Recreation Room
  • Floor Plan Split Entry
  • Garage 2
  • HOA $ /
  • Floodplain Unknown
  • HMLS Number 2569942
  • Laundry Room Main Level
  • Ownership Private
  • Property Status Active
  • Water Public
  • Will Sell Cash, Conventional, FHA, USDA Loan, VA Loan
https://www.zillow.com/view-imx/190a9e90-b0e2-4192-b0c7-e7f7074c7a1c?setAttribution=mls&wl=true&initialViewType=pano&utm_source=dashboard

Get Directions

Nearby Places

Contact

Michael

Your Real Estate Agent
Liberty, MO 64068
(816) 616-5640
michael@kcrealtors.com

Leave a Reply