Homes for Sale in Liberty, MO 64068 | 9623 Betsy Ross Lane

2583762

Property ID

3,700 SqFt

Size

4

Bedrooms

3

Bathrooms

Description

Want the serenity of acreage living—without the endless upkeep? Welcome home. This custom-built masterpiece sits gracefully on a half-acre, surrounded by open fields that stretch endlessly in front and behind, offering uninterrupted views of both sunrise and sunset. Every window frames a moment of beauty, every detail whispers sophistication.

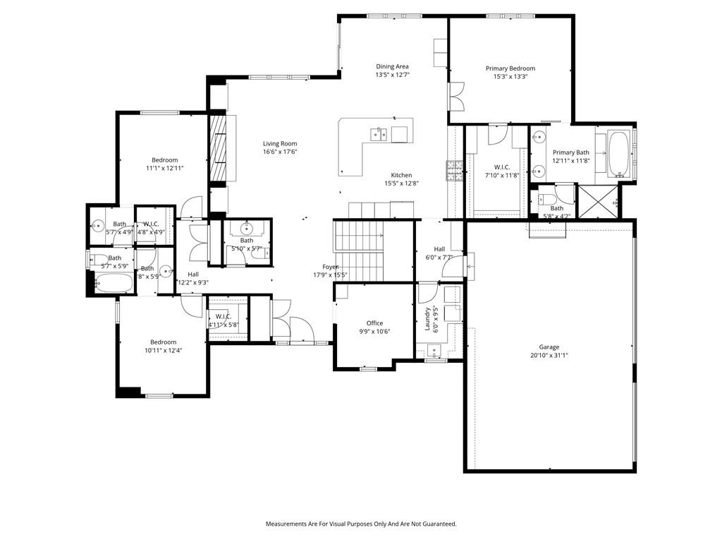
Step inside to an expansive open floor plan where sunlight dances across hardwoods and architectural details—arched entries, trayed ceilings, and a custom fireplace that anchors the heart of the home. The chef’s kitchen is nothing short of spectacular: a massive island with seating for seven or more, top-of-the-line gas range and hood, abundant custom cabinetry, and endless counter space that invites gathering, creating, and connection.

On the main level, discover three spacious bedrooms, a dedicated office, and the convenience of main-floor laundry. The primary suite feels like a private retreat—complete with a spa-inspired bath featuring a sliding barn door, jetted tub, dual shower heads, double sinks, and an enviable walk-in closet. Two additional bedrooms share a beautifully appointed Jack-and-Jill bath, each with its own walk-in closet.

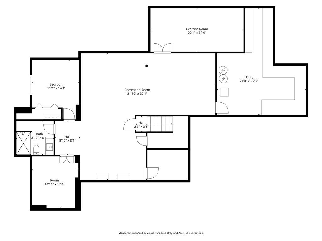
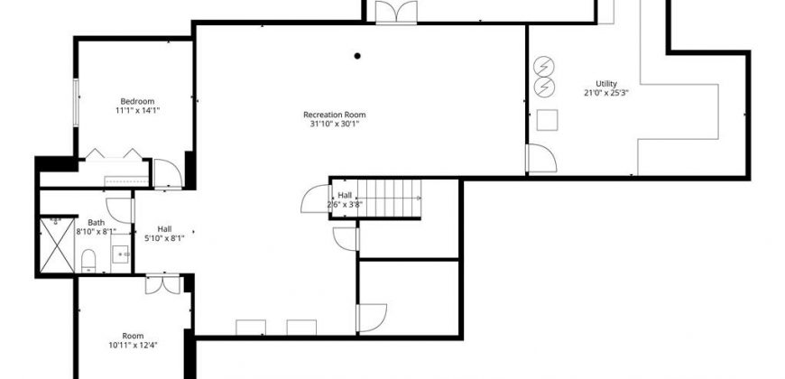
Downstairs, the possibilities expand. A large finished basement with tall ceilings offers a true fourth bedroom, two non-conforming bedrooms, a theater room, and an expansive storage area with built-in shelving.

Outside, a flat backyard blends seamlessly into open countryside—peaceful, private, and perfect for gatherings under the stars. The oversized three-car garage has been professionally finished to perfection, ready for cars, hobbies, or an extra workspace.

With updated lighting, fresh paint throughout, and a newer roof, this home delivers the ideal blend of refined living and effortless country calm—where every day begins and ends with a view worth a million dollars.

Address

Address: 9623 Betsy Ross Lane, Liberty, MO 64068
  • Country: United States
  • Province / State: MO
  • City / Town: Liberty
  • Neighborhood: Liberty Hills
  • Postal code / ZIP: 64068
Open on Google Maps
  • Property ID 2583762
  • Price $560,000
  • Property Type Single Family Residence
  • Property status Pending
  • Bedrooms 4
  • Bathrooms 3
  • Year Built 2007
  • Size 3700 SqFt
  • Land area 0.53 SqFt
  • Garages 3
  • School District Liberty
  • High School Liberty North
  • Middle School Heritage
  • Elementary School Franklin
  • Acres 0.53
  • Age 16-20 Years
  • Basement Basement BR, Egress Window(s), Finished, Full
  • Bathrooms 3 full, 1 half
  • Builder Unknown
  • HVAC Electric, Electric
  • County Clay
  • Dining Eat-In Kitchen,Kit/Family Combo
  • Equipment Cooktop, Dishwasher, Disposal
  • Fireplace 1 - Gas, Living Room
  • Floor Plan Reverse 1.5 Story
  • Garage 3
  • HOA $50 / Annually
  • Floodplain No
  • HMLS Number 2583762
  • Laundry Room Main Level
  • Other Rooms Fam Rm Gar Level,Fam Rm Main Level,Family Room,Main Floor BR,Main Floor Primary Bedroom,Office,Recreation Room
  • Ownership Private
  • Property Status Pending
  • Water Public
  • Will Sell Cash, Conventional, FHA, VA Loan

Get Directions

Nearby Places

Contact

Michael

Your Real Estate Agent
Liberty, MO 64068
(816) 616-5640
michael@kcrealtors.com

Leave a Reply