Homes for Sale in Liberty, MO 64068 | 1984 Longview Drive

2547835

Property ID

2,150 SqFt

Size

4

Bedrooms

2

Bathrooms

Description

**In-ground Sprinklers**Looking at an end of December / January Finish!!
The Mackenzie Plan is a beautiful 2 Story home perfect for any growing family!!! ***Some pictures could be from another home with the same floor plan and may or may not depict upgrades not featured in this home.** **Finishes stated could change without notice!**

Address

Address: 1984 Longview Drive, Liberty, MO 64068
  • Country: United States
  • Province / State: MO
  • City / Town: Liberty
  • Neighborhood: Homestead Hills
  • Postal code / ZIP: 64068
Open on Google Maps
  • Property ID 2547835
  • Price $531,900
  • Property Type Single Family Residence
  • Property status Active
  • Bedrooms 4
  • Bathrooms 2
  • Year Built 2025
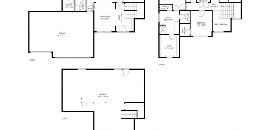
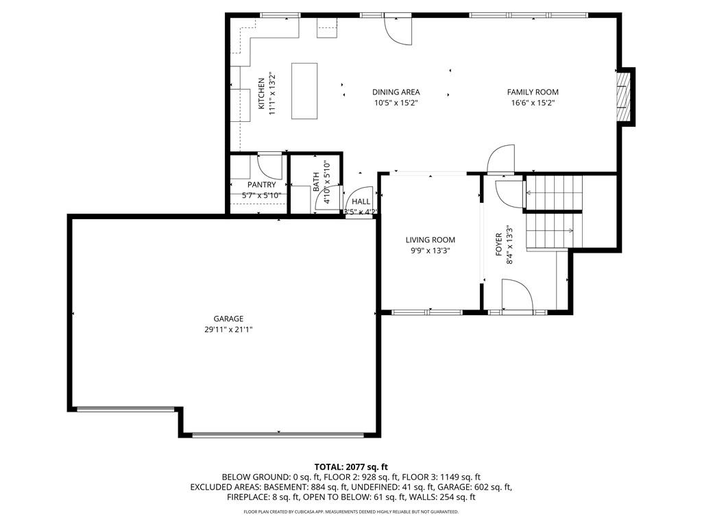
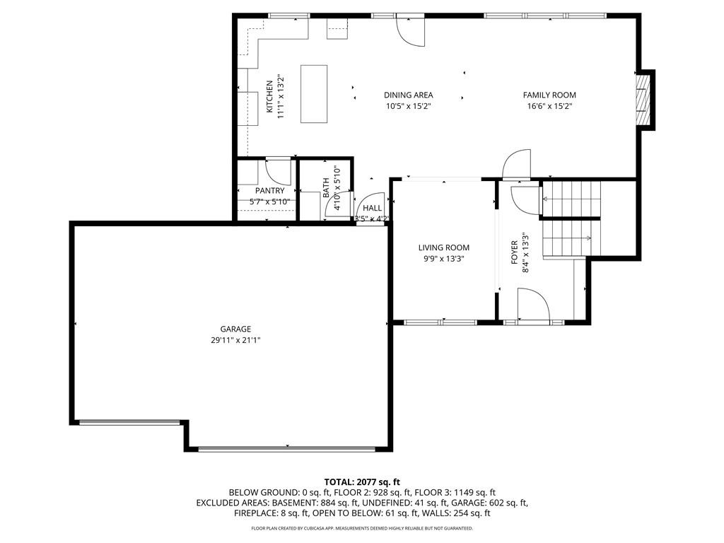
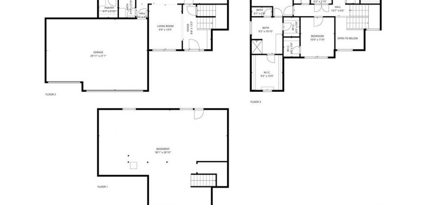
  • Size 2150 SqFt
  • Land area 0.14 SqFt
  • Garages 3
  • School District Liberty
  • High School Liberty
  • Middle School Liberty
  • Elementary School Alexander Doniphan
  • Acres 0.14
  • Age 2 Years/Less
  • Amenities Pool
  • Basement Concrete, Full, Unfinished, Walk-Out Access
  • Bathrooms 2 full, 1 half
  • Builder Unknown
  • HVAC Electric, Forced Air
  • County Clay
  • Dining Formal
  • Equipment Dishwasher, Disposal, Microwave, Electric Range
  • Fireplace 1 - Living Room
  • Floor Plan 2 Stories
  • Garage 3
  • HOA $650 / Annually
  • Floodplain No
  • Lot Description City Limits, City Lot, Sprinkler-In Ground
  • HMLS Number 2547835
  • Laundry Room Upper Level
  • Open House EXPIRED
  • Ownership Investor
  • Property Status Active
  • Warranty Builder-1 yr
  • Water Public
  • Will Sell Cash, Conventional, FHA, VA Loan

Get Directions

Nearby Places

Contact

Michael

Your Real Estate Agent
Liberty, MO 64068
(816) 616-5640
michael@kcrealtors.com

Leave a Reply