Homes for Sale in Liberty, MO 64068 | 1484 Hemlock Drive

2544344

Property ID

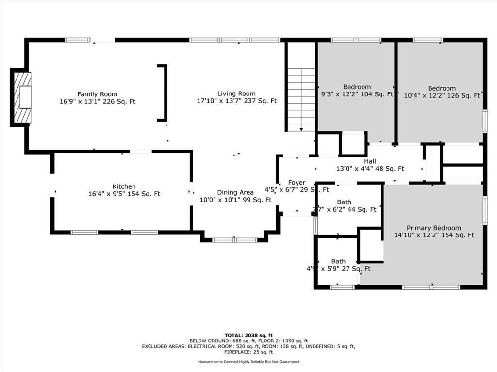
2,038 SqFt

Size

3

Bedrooms

2

Bathrooms

Description

Spacious Ranch home with hardwood floors throughout the main level, all new paint and tons of recent updates throughout the home. Finished basement area allows for additional living/ rec room/ office space- features a wet bar and walks out to the large yard. Tons of natural light throughout the floorplan and well maintained… this home is a must see!

Address

Address: 1484 Hemlock Drive, Liberty, MO 64068
  • Country: United States
  • Province / State: MO
  • City / Town: Liberty
  • Neighborhood: Greene Hills
  • Postal code / ZIP: 64068
Open on Google Maps
  • Property ID 2544344
  • Price $315,000
  • Property Type Single Family Residence
  • Property status Active
  • Bedrooms 3
  • Bathrooms 2
  • Year Built 1964
  • Size 2038 SqFt
  • Land area 0.55 SqFt
  • Garages 2
  • School District Liberty
  • High School Liberty North
  • Elementary School Lewis & Clark
  • Acres 0.55
  • Age 51-75 Years
  • Basement Finished, Walk-Out Access
  • Bathrooms 2 full, 1 half
  • Builder Unknown
  • HVAC Attic Fan, Electric, Electric
  • County Clay
  • Dining Country Kitchen,Formal
  • Fireplace 1 - Family Room
  • Floor Plan Ranch
  • Garage 2
  • HOA $0 / None
  • Floodplain Unknown
  • Lot Description City Lot, Many Trees
  • HMLS Number 2544344
  • Laundry Room In Basement
  • Other Rooms Family Room,Great Room,Main Floor BR,Main Floor Primary Bedroom,Recreation Room
  • Ownership Investor
  • Property Status Active
  • Warranty Seller Provides
  • Water Public
  • Will Sell Cash, Conventional, FHA, VA Loan

Get Directions

Nearby Places

Contact

Michael

Your Real Estate Agent
Liberty, MO 64068
(816) 616-5640
michael@kcrealtors.com

Leave a Reply