Homes for Sale in Kansas City, MO 64156 | 2703 NE 92nd Street

2584385

Property ID

3,497 SqFt

Size

4

Bedrooms

4

Bathrooms

Description

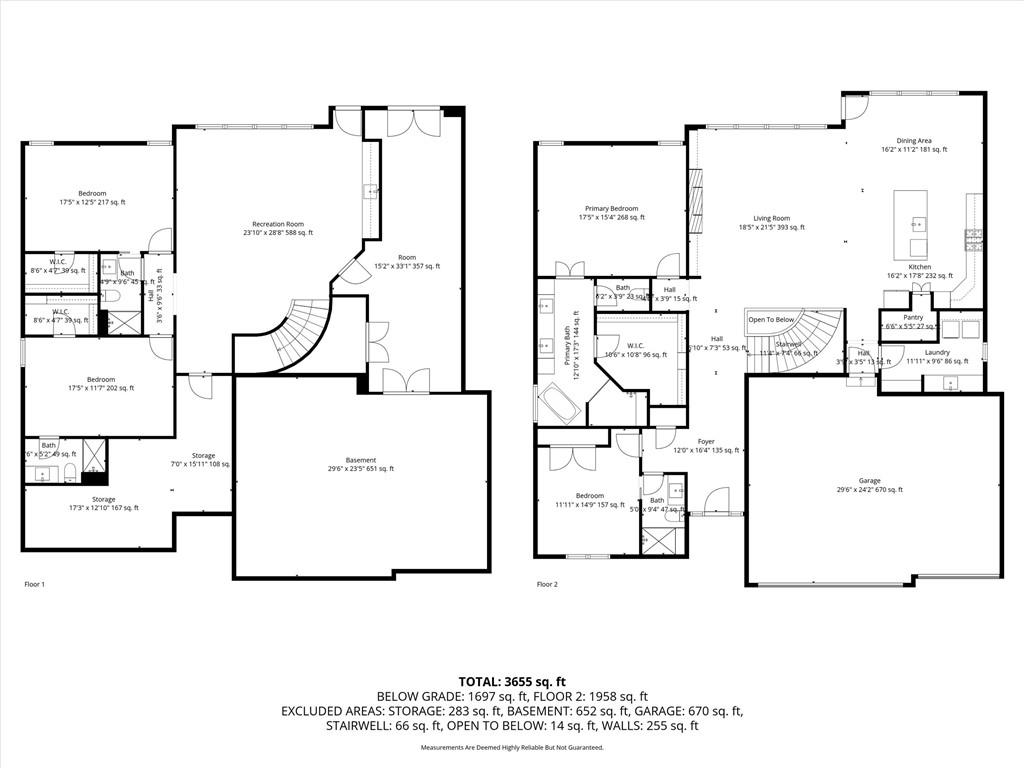
Experience refined living in this exceptional reverse 1.5-story former model home, thoughtfully designed with every upgrade and detail in mind. Perfectly situated on a desirable corner lot within a highly sought-after community and top-rated school district, this residence blends timeless elegance with modern comfort. The main level showcases tall ceilings and an expansive open-concept design, where the living area flows effortlessly onto a covered deck—ideal for morning coffee or evening relaxation with a view. An additional main-floor bedroom offers flexibility for a guest suite or private home office. The luxurious primary suite provides a tranquil retreat, featuring a spa-inspired ensuite with a soaking tub, walk-in shower, and elegant finishes. The lower level is an entertainer’s dream, boasting generous living space, two additional bedrooms, and two full baths—perfect for hosting guests or creating a private family retreat. Exceptional storage abounds, including an impressive, fully excavated area beneath the garage with epoxy flooring—an ideal space for a workshop, fitness area, or additional storage. A three-car garage and full sprinkler system complete this remarkable home, where sophistication meets comfort in every detail.

Address

Address: 2703 NE 92nd Street, Kansas City, MO 64156
  • Country: United States
  • Province / State: MO
  • City / Town: Kansas City
  • Neighborhood: Pembrooke Estates
  • Postal code / ZIP: 64156
Open on Google Maps
  • Property ID 2584385
  • Price $685,000
  • Property Type Single Family Residence
  • Property status Active
  • Bedrooms 4
  • Bathrooms 4
  • Size 3497 SqFt
  • Land area 0.27 SqFt
  • Label OPEN HOUSE: 2025-11-09 (Sun)
  • Garages 3
  • School District North Kansas City
  • High School Staley High School
  • Middle School New Mark
  • Elementary School Northview
  • Acres 0.27
  • Age 6-10 Years
  • Amenities Pool, Trail(s)
  • Basement Basement BR, Egress Window(s), Finished, Walk-Out Access
  • Bathrooms 4 full, 0 half
  • Builder Unknown
  • HVAC Electric, Heat Pump, Forced Air, Heatpump/Gas
  • County Clay
  • Equipment Dishwasher, Disposal, Exhaust Fan, Microwave, Refrigerator, Stainless Steel Appliance(s)
  • Fireplace 1 - Great Room
  • Floor Plan Ranch,Reverse 1.5 Story
  • Garage 3
  • HOA $650 / Annually
  • Floodplain No
  • Lot Description Sprinkler-In Ground
  • HMLS Number 2584385
  • Laundry Room Main Level
  • Open House Sun November 9 (1am to 3pm)
  • Other Rooms Breakfast Room,Family Room,Great Room,Main Floor BR,Main Floor Primary Bedroom,Office
  • Ownership Private
  • Property Status Active
  • Water Public
  • Will Sell Cash, Conventional, FHA, VA Loan

Get Directions

Nearby Places

Contact

Michael

Your Real Estate Agent
Liberty, MO 64068
(816) 616-5640
michael@kcrealtors.com

Leave a Reply