Homes for Sale in Holt, MO 64048 | 19319 Old Bb Highway

$399,000
Show For Backups

2555967

Property ID

4,600 SqFt

Size

4

Bedrooms

3

Bathrooms

Description

This distinctive barn-style home is ready for your holiday gatherings!

The seller has made significant updates and is eager to see this home sold! New roof was installed the week of November 3rd, adding to the long list of recent improvements.

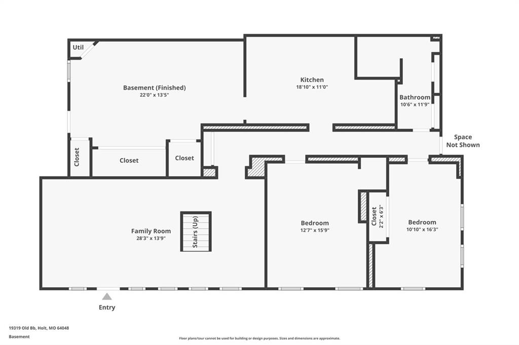
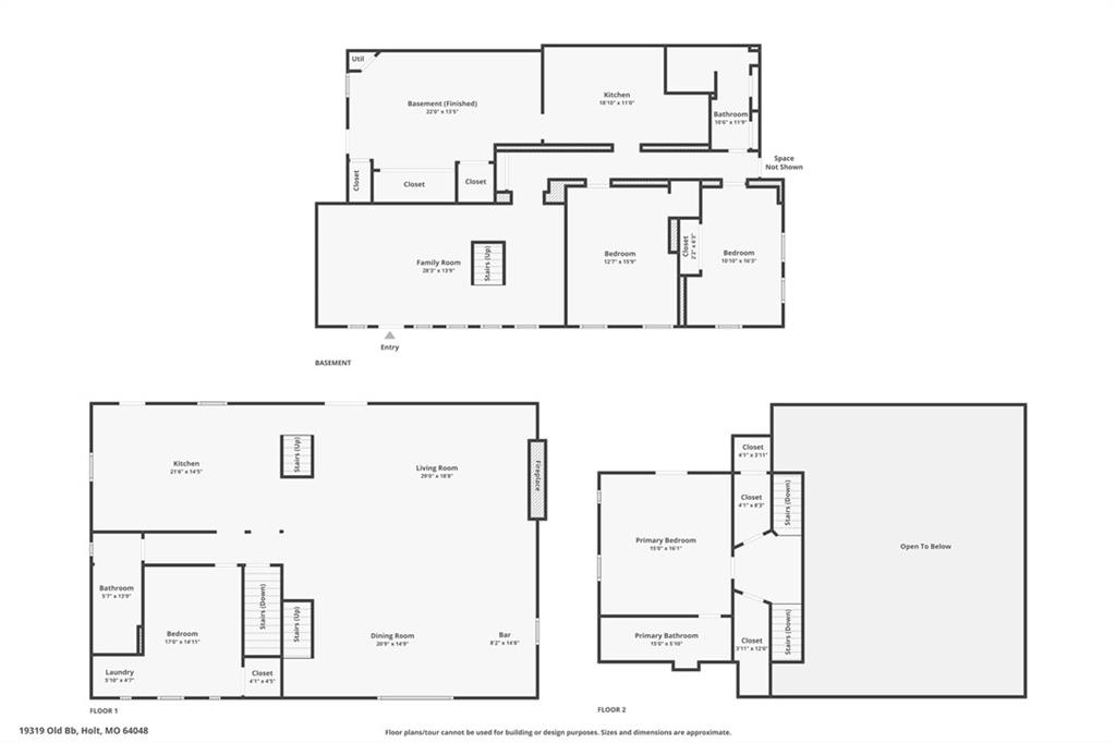
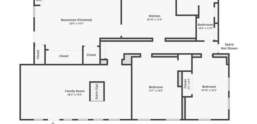
Set on 4.6 acres in the Kearney School District, this one-of-a-kind property offers 4,600 sq. ft. of living space, including 4 bedrooms, 3 bathrooms, 2 family rooms, and a basement kitchenette—perfect for flexible living, multi-generational arrangements, or entertaining with ease.

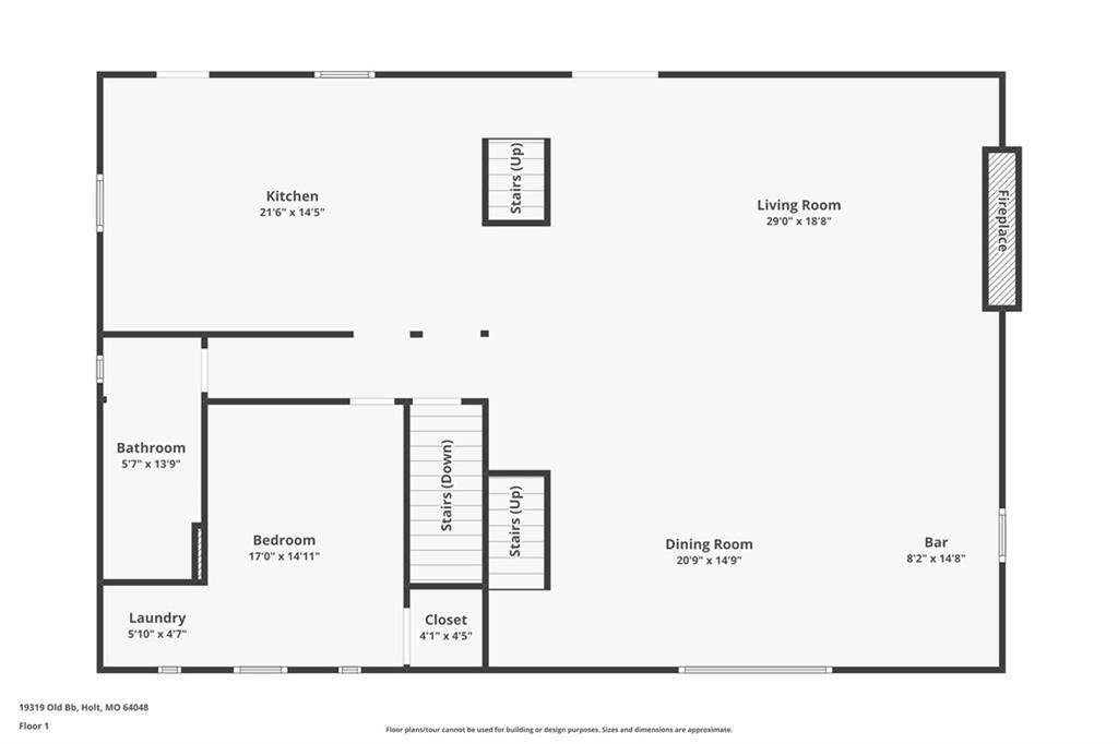
Step inside to find a dramatic two-story family/dining room filled with rustic character. The first level includes a kitchenette, 2 bedrooms, 1 bathroom, and 2 living areas—ideal for guests, extended stays, or a dedicated space for work or hobbies.

Upstairs, you’ll find a private owner’s retreat occupying the third-level loft, complete with a spacious bedroom, full bathroom, and abundant closet space—creating a peaceful hideaway separate from the rest of the home.

The seller has made inspection reports available and completed numerous updates, including a new electrical panel, new 17-ton bridge, upgraded furnace and A/C, apron front kitchen sink, marble countertops, 200′ water line replacement, paint, flooring, and more.

Outside, enjoy the tranquility of 4.6 acres (fenced on three sides), a barn with stables, and a spacious back deck overlooking the scenic landscape. Conveniently located just off I-35 north of Kansas City, this home combines the peace of country living with a short drive—less than 20 minutes—to shopping, dining, and entertainment.

The seller is motivated and welcomes offers from buyers seeking a home that blends space, character, and convenience.

Address

Address: 19319 Old Bb Highway, Holt, MO 64048
  • Country: United States
  • Province / State: MO
  • City / Town: Holt
  • Neighborhood: Other
  • Postal code / ZIP: 64048
Open on Google Maps
  • Property ID 2555967
  • Price $399,000
  • Property Type Single Family Residence
  • Property status Show For Backups
  • Bedrooms 4
  • Bathrooms 3
  • Year Built 1975
  • Size 4600 SqFt
  • Land area 4.66 SqFt
  • School District Kearney
  • Acres 4.66
  • Age 41-50 Years
  • Basement Finished, Full, Walk-Out Access
  • Bathrooms 3 full, 0 half
  • Builder Unknown
  • HVAC Electric, Natural Gas, Propane
  • County Clay
  • Dining Eat-In Kitchen,Formal
  • Equipment Dishwasher, Electric Range
  • Fireplace 1 - Family Room, Wood Burning
  • Floor Plan Tri Level
  • HOA $ /
  • Floodplain No
  • Lot Description Acreage, Many Trees
  • HMLS Number 2555967
  • Laundry Room Lower Level
  • Ownership Private
  • Property Status Show For Backups
  • Water Rural
  • Will Sell Cash, Conventional, FHA
https://www.zillow.com/view-imx/4f1ce4ec-12a8-47c6-88ab-f85c57200bfc?setAttribution=mls&wl=true&initialViewType=pano&utm_source=dashboard

Get Directions

Nearby Places

Contact

Michael

Your Real Estate Agent
Liberty, MO 64068
(816) 616-5640
michael@kcrealtors.com

Leave a Reply